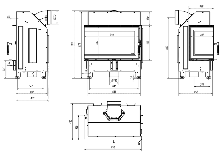
Technické parametre:
- Rozmery
- Hmotnosť 158 kg
- Nominálny výkon (kW) 9.9
- Palivo Drevo
- Materiál Oceľ
- Ohnisko Termotec krémový
- Externý prívod vzduchu Áno
- Popolník Nie
- Účinnosť (%) 86
- Emisie CO (13% O2 VOL. %) 0.086
- Max. dĺžka polien (mm) 400
- Dymovod Horný / Zadný
- Priemer dymovodu (mm) 180
- Teplota spalín (°C) 177
- Kolekcia ZIBI
- Výrobca KRATKI
- Otváranie dvierok Bočné
- Presklenie Rohové - pravé
- Typ produktu Teplovzdušná krbová vložka
Technické parametre
ZIBI ECO – Teplo, ktoré si zamilujete
ZIBI ECO je moderná, oceľová krbová vložka, ktorá spája elegantný dizajn s mimoriadnou funkčnosťou. Bola navrhnutá s ohľadom na najnáročnejších používateľov a perfektne sa hodí do klasických aj moderných interiérov. Vďaka osvedčeným technologickým riešeniam a obloženiu z akumulačného materiálu TERMOTEC zaisťuje ZIBI ECO nielen efektívne a ekologické spaľovanie, ale aj jednoduché čistenie a vysoký komfort pri každodennom používaní.
Ekológia pre životné prostredie
Krbová vložka ZIBI ECO bola navrhnutá tak, aby spĺňala prísne regionálne ekologické požiadavky týkajúce sa emisných noriem pre krbové vložky a iné zariadenia na tuhé palivo, vrátane noriem ako: Ecodesign, BImSchV 2, Flamme Verte, Wallonair (BE), 4 Stelle Certificato ambiental (IT), DIN+ a 15a B-VG. Bola tiež testovaná podľa novej, prísnejšej normy EN 16510.
To zaručuje čisté spaľovanie a vysokú energetickú účinnosť šetrnú k životnému prostrediu. Krbová vložka môže byť prevádzkovaná aj v domoch s rekuperáciou tepla, čo z nej robí vynikajúce riešenie pre moderné budovy. Je spoľahlivým zdrojom tepla, ktorý kombinuje bezpečnosť, odolnosť a ohľaduplnosť k životnému prostrediu.
Prečo si vybrať ZIBI ECO?
Elegantný pohľad na oheň – Dekoratívne žiaruvzdorné sklo (odolné voči teplotám do 600°C) s elegantným dekorom poskytuje dokonale jasný pohľad na plamene, čím umocňuje atmosféru.
TERMOTEC – Obloženie ohniska týmto materiálom (dostupné aj v elegantnej čiernej farbe) zaisťuje vyššiu účinnosť vykurovania a dlhodobé udržanie tepla aj po vyhasnutí ohňa.
Bežroštové spaľovanie – Drevo horí na popole, čím sa minimalizuje odpad a maximalizuje využitie energie. V praxi to znamená, že palivo zhorí na jemný popol, pričom zostáva len minimálne množstvo zvyškov.
Systém deflektorov a radiátorov – Predĺžená dráha spalín a maximálna rekuperácia tepla.
Vynikajúca tesnosť – Zabezpečená pevnými zvarmi vykonanými v ochrannom plyne, čo zaručuje spoľahlivú a bezpečnú prevádzku. Oceľové prvky sú precízne rezané laserom a ohýbané na moderných CNC strojoch, čo zaručuje kvalitu a trvanlivosť produktu.
Vhodné pre domy s rekuperáciou – Vzduchotesná vložka a možnosť pripojenia vonkajšieho vzduchu pomocou externého prívodu ju robia ideálnou pre moderné domy s riadeným vetraním (rekuperačné systémy).
Intuitívna regulácia spaľovania – Používa sa jediný ovládací prvok – klapka na flexibilnej hriadeli s penovým tesnením. (Tesniaci materiál má tepelnú odolnosť −80/+100°C).
Stabilita a flexibilita inštalácie – Nastaviteľné nožičky a 360∘ otočný výstup dymovodu prispôsobia zariadenie každému interiéru.
Radiátory – Husto rozmiestnené radiátory maximalizujú využitie tepla, čo zvyšuje účinnosť vykurovania a zaisťuje lepšiu distribúciu tepla v miestnosti.
Rukoväť – Elegantná a pohodlná s ergonomickým tvarom, podčiarkuje jedinečný charakter krbu.
Vstavaný prívod vzduchu ϕ125 – Integrované pripojenie na vonkajší vzduch.
Farba – Lak odolný proti poškriabaniu s hladkou štruktúrou nevydáva nepríjemné pachy vďaka nízkemu obsahu rozpúšťadiel.
Oceľová lišta (voliteľná) – Moderný oceľový dekoratívny rám pre krbovú vložku ZIBI ECO. Umožňuje rýchlu inštaláciu a ľahké, estetické a elegantné dokončenie obostavby.
Energetická bezpečnosť – Krbová vložka je nezávislé vykurovacie riešenie, čo znamená spoľahlivosť a bezpečnosť v každej situácii a slúži ako alternatívny zdroj tepla v prípade výpadku elektriny alebo plynu.
- Minimálna požadovaná veľkosť mriežky na výdaj vzduchu (cm2): ≥900
- Minimálna požadovaná veľkosť mriežky na príjem vzduchu (cm2): ≥700

Viac z kategórie
1400 €

